產品分類product list
大傾角皮帶輸送機產品概述:
大傾角皮帶輸送機廣泛用于煤炭、冶金、建筑、糧食、化工、電力等部門。大傾角帶式輸送機具有通用帶式輸送機結構簡單、運行可靠,維修方便等優點,具有可大傾角(90度垂直)輸送、結構緊湊、占地少等特點,輸送傾角為0°~90°范圍內,*大垂直輸送物料粒度為400mm。大傾角帶式輸送機是大傾角(或垂直)輸送的理想設備。通過多年的不懈努力,大傾角皮帶機提升高度(*高已達203m)、大輸送能力(*大已達6000t/h),在井下采礦工程、露天采礦、大型自卸船等方而都有所采用,并在國內**用于鋼廠的高爐上料產生了良好的經濟效益。
DJ型大傾角帶式輸送機(以下簡稱“大傾角”)具有通用帶式輸送機結構簡單、運行可靠,維修方便等優點,具有可大傾角(90度垂直)輸送、結構緊湊、占地少等特點,因而是大傾角(或垂直)輸送的理想設備。大傾角皮帶輸送機廣泛用于煤炭、冶金、建筑、糧食、化工、電力等部門。通過多年的不懈努力,大傾角皮帶機提升高度(*高已達203m)、大輸送能力(*大已達6000t/h),在井下采礦工程、露天采礦、大型自卸船等方而都有所采用,并在國內**用于鋼廠的高爐上料產生了良好的經濟效益。
大傾角皮帶輸送機的應用范圍:
(1)、大傾角皮帶輸送機為一般用途的散狀物料連續輸送設備,但采用的是具有波狀擋邊和橫隔板的輸送帶。因此,特別適用于大傾角及垂直90°輸送。
(2)、該機可用于煤碳、化工、冶金、電力、輕工、糧食、港口等行業,在工作環境溫度為-15℃~+40℃的范圍內輸送堆積比重為0.5—4.2t/m3的各種散狀物料。
(3)、對于輸送有特殊要求的物料,如:高溫、具有酸、堿、油類物質或有機溶劑等成份的物料,需采用特殊的輸送帶。
(4)、輸送傾角為0°~ 90°范圍內,*大垂直輸送物料粒度為400mm。
大傾角皮帶輸送機產品主要特點:
(1)、可大傾角輸送散狀物料,能大量節省設備占地面積,徹底解決普通、花紋帶式輸送機所不能達到的輸送角度。
(2)、機械化帶式輸送機輸送物料、總體投資費用低,約節約投資費用20%~30%。
(3)、該機型與普通帶式輸送機、斗式提升機、刮板輸送機比較,其綜合技術性能都**。
(4)、輸送量大,可達6000m3/h,垂直提升高度可達500m。
(5)、在垂直輸送物料時,物料粒度*大可達400mm。
(6)、從水平到傾斜(或垂直)能平穩過渡。
(7)、能耗低、結構簡單、維護方便。
(8)、膠帶強度高,使用壽命長。
大傾角皮帶輸送機的主要優點:
(1)大傾角皮帶輸送機的輸送傾角大,*大可達90°,是大傾角輸送和垂直提升的理想設備。因此可以節約占地面積,節省設備投資和土建費用,取得良好的綜合經濟效益。例如,某用戶欲將煤炭提升到20m高的料倉頂,如采用擋邊機以45°傾角輸送,則機長僅需28.3m(水平機長20m);而如果采用垂直輸送的擋邊機,那么,水平機長可以控制在6m以內。
(2)結構簡單。如前所述,各主要部件均可與通用帶式輸送機通用,給使用、維修帶來方便。
(3)運行可靠。沒有埋刮板輸送機經常出現的卡鏈、飄鏈、斷鏈現象和斗式提升機經常發生的打滑、掉斗現象。它的可靠度幾乎與通常帶式輸送機相等。
(4)運行平穩、噪聲小。
(5)由于不存在裝料時的挖掘阻力和運行時物料的內摩擦、外摩擦阻力,因此能耗小。例如,在魯南化肥廠使用的兩臺提升高度各為19.28m、輸送能力各為25t/h的輸送碎煤的垂直擋邊機,其每臺的裝機功率僅4kW,而被它們所取代的四臺原有埋刮板輸送機的總裝機功率為44kw。
(6)垂直擋邊機還可以在機頭和機尾設置任意長度的水平輸送段,便于和其他設備銜接。
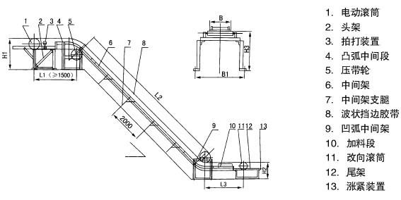
大傾角皮帶輸送機外形圖:

大傾角皮帶輸送機(擋邊帶式輸送機)技術參數表:
帶寬B(mm) | 300 | 400 | 500 | 650 | 800 | |||||||||
擋邊高(mm) | 40 | 60 | 60 | 80 | 80 | 120 | 120 | 160 | 120 | 160 | 200 | 240 | ||
部分輸送傾角輸送量Q3/h | 30° | 15 | 14 | 20 | 34 | 46 | 71 | 104 | 120 | 128 | 157 | 195 | 235 | |
45° | 11 | 10 | 14 | 26 | 35 | 57 | 83 | 97 | 102 | 127 | 157 | 195 | ||
60° | 8 | 7 | 10 | 18 | 25 | 40 | 58 | 69 | 72 | 90 | 112 | 142 | ||
90° | 4 | 4 | 5 | 10 | 13 | 21 | 31 | 37 | 38 | 48 | 60 | 76 | ||
外型尺寸 | 頭輪中心高H2/h(MM) | 350-100 | 1100-2000 | 1300-2000 | 1300-2000 | |||||||||
尾輪中心高H2/h(MM) | 335 | 330-490 | 600 | 600 | 600-800 | |||||||||
中間段帶面高H2/h(MM) | 450 | 500-700 | 760-800 | 800-850 | 800-1115 | |||||||||
中間段地腳寬B2/h(MM) | 480 | 580 | 870 | 1020 | 1220 | |||||||||
帶寬B(mm) | 1000 | 1200 | 1400 | |||||||||||
擋邊高(mm) | 120 | 160 | 200 | 240 | 160 | 200 | 240 | 300 | 160 | 200 | 240 | 300 | 400 | |
部分輸送傾角輸送量Q3/h | 30° | 172 | 216 | 267 | 327 | 275 | 331 | 419 | 466 | 319 | 395 | 500 | 564 | 794 |
45° | 137 | 175 | 216 | 271 | 222 | 267 | 347 | 384 | 258 | 318 | 414 | 465 | 680 | |
60° | 96 | 124 | 153 | 197 | 158 | 190 | 253 | 178 | 184 | 226 | 302 | 337 | 524 | |
90° | 51 | 66 | 83 | 106 | 85 | 102 | 136 | 149 | 98 | 121 | 162 | 180 | 281 | |
外型尺寸 | 頭輪中心高H2/h(MM) | 1400-2000 | 1600-2000 | |||||||||||
尾輪中心高H2/h(MM) | 600-800 | 800-1000 | 800-1200 | |||||||||||
中間段帶面高H2/h(MM) | 800-1200 | 1050-1500 | 1050-1700 | |||||||||||
中間段地腳寬B2/h(MM) | 1440 | 1690 | 1890 | |||||||||||
★倍力特振動可根據用戶需要而設計制造特殊型號規格的皮帶式輸送機。大傾角皮帶輸送機(擋邊帶式輸送機)訂貨須知:
根據輸送機出力要求及工藝布置要求,用戶應向生產廠商提供輸送機的布置形式及尺寸、帶寬、生產率、物料堆積密度等參數;如用戶有特殊要求可與生產廠商另行洽談。
★倍力特振動對所有技術資料、尺寸保留修改的權利,如實物與文中圖案不符,應以實物為準,解釋權歸倍力特公司。










營銷部
電 話:0373-7039681 0373-7039688
傳 真:0373-7039680
銷售部
手機號碼:13803801680(岳經理)
技術咨詢:岳工 15637331579 申工 15565285088
公司郵箱:xxbltaaa@xxblt.com
公司地址:鳳泉區產業工業園區
華北駐沈陽辦事處
岳經理 13803802837
華南駐長沙辦事處
岳經理 13803802837
華東駐杭州辦事處
狄經理 13803801293
西北駐西安辦事處
畢經理 18238777782
西南駐貴陽辦事處
韓經理13781994938